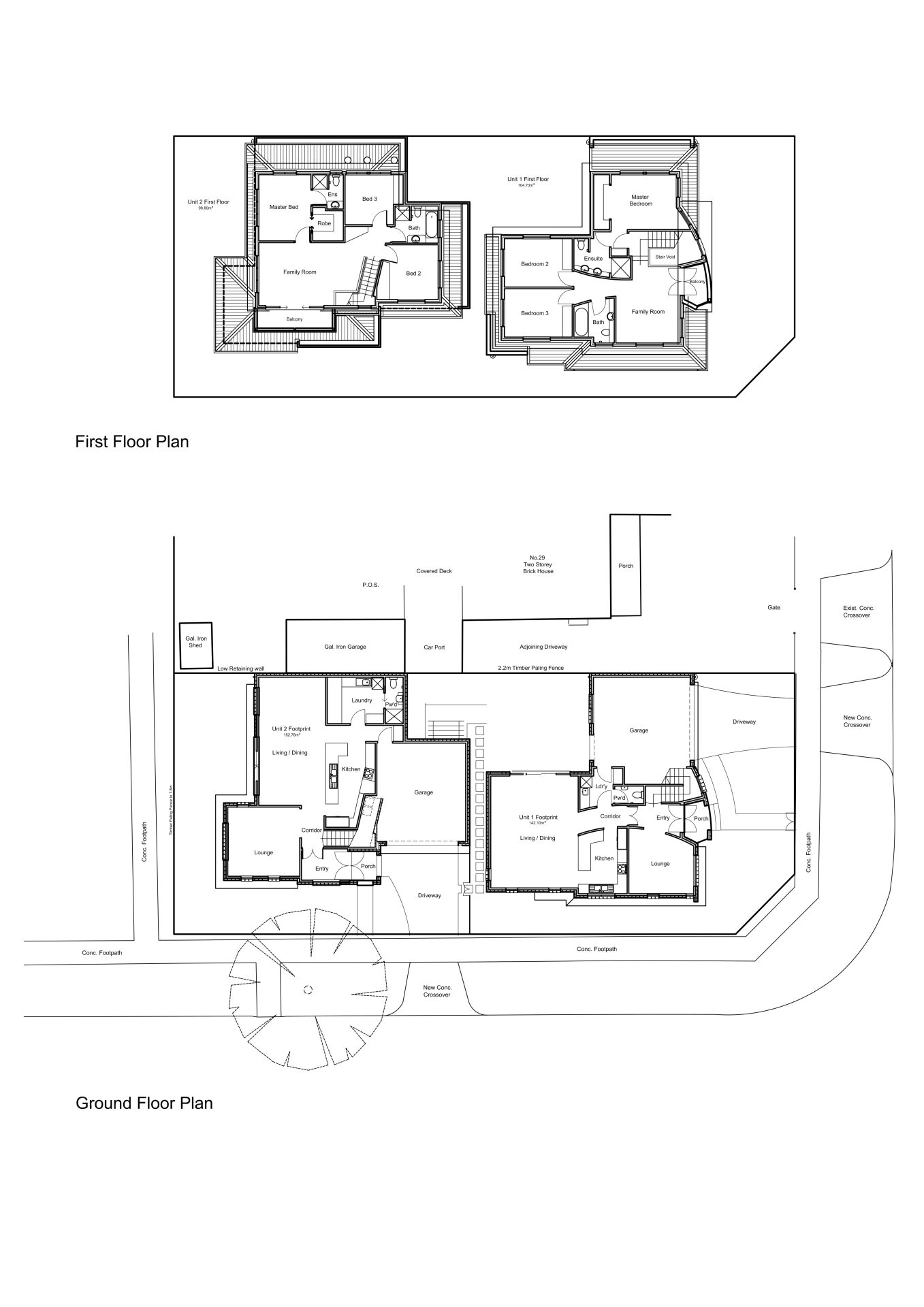
I quite like these units. They ticked a lot of boxes.
The clients were a three generational family. Mum & Dad live in Unit 2. The kids and grand kids live in Unit 1.
The design had to meet a lot of requirements. Most of them were Town Planning, legal and construction requirements.
In comparison the Clients brief was simple:
- Two houses on a single lot. Not connected.
- The design was to be ‘in keeping’ with the surrounding houses; brick veneer with a hipped tiled roof… Nothing too modern.
- Both houses were to be three bedrooms, the master with ensuite and robe.
- An upstairs living space with a door to a balcony was not in the original brief but the space was available upstairs and the clients really liked the idea because they smoked… Actually that’s why I suggested it.
